
Fall is the perfect time to rethink how you use your garage. As summer gear gets tucked away, your garage can become a hard-working extension of your home, tailored to your lifestyle.
Whether it’s a workshop, a storage hub, or a launchpad for family adventures, here are some ways to get the most out of this often-overlooked space.

This Allegro executive home features a 2-car plus tandem garage.
1. Think Beyond the Car
Your garage is more than just a parking spot, it’s a space with endless potential waiting to be maximized. With a little planning, it can house sports gear, summer toys, gardening tools, or your next big project.
Consider:
▪️ Overhead racks for seasonal items like camping gear or holiday décor.
▪️ Wall-mounted pegboards for tools, bikes, or garden essentials.
▪️ Cabinets and shelving to free up floor space and make everything easy to find.
Every inch of vertical space is an opportunity. At many Geranium communities, such as Allegro in Aurora, you’ll find spacious two- and three-car garages, offering the flexibility to create solutions tailored to fit your family’s growing needs.

Make space for adventure by storing your summer toys in your garage.
2. Customize for Your Lifestyle
The best garages reflect the people who use them. Which one tells your story best?
The Outdoor Enthusiast: Imagine bikes, skis, and kayaks neatly stored on racks and hooks for easy access. This is a perfect fit for our Midhurst Valley community with all its opportunities for four-season outdoor adventure. Whether you’re spending a day on Lake Simcoe or on nearby ski hills, a well-organized garage makes it a breeze.
The DIYer: A durable workbench, tool storage, and plenty of outlets creates the perfect setting for all your projects and keeps the mess out of the house.
The Organized Family: Labeled bins, cubbies, and lockers for sports equipment, backpacks, and shoes. Life is better with a little organization.
When designed around your needs, your garage becomes a daily convenience, not a clutter zone, organized to support your active lifestyle.

Keep life organized with generous garage storage in homes at Midhurst Valley.
3. The Power of a Tandem Garage
Many Geranium homes offer the versatile tandem garage option, featured at Courts of King’s Bay. The tandem space extends twice as deep as a normal garage, giving you more flexible space without requiring a wider lot.
Think of the possibilities:
▪️ A home gym with space and comfort through every season.
▪️ A woodworking station set up with organized storage for tools and easy access to supplies.
▪️ Room for a car restoration project.
▪️ A hobby space tailored to crafts, projects, or collections you love.
▪️ An entertainment retreat designed for games, music, or relaxing movie nights.
▪️ Space to store seasonal sports vehicles like snowmobiles, motorcycles, jet skis or kayaks.
It’s a smart way to add usable square footage exactly where you need it most.

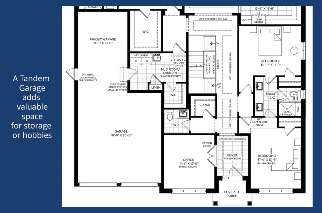
The Bayside floorplan at Courts of King’s Bay highlights the functional design of its tandem garage.
4. Seasonal Storage Made Simple
Fall is the season to pack away paddleboards, lawn games, and summer toys, making room for snow blowers and holiday décor. Invest in sturdy bins, ceiling racks, and wall systems so everything has a place. That way, when spring rolls around, you’ll know exactly where to find your gear.

A little organization frees up space and makes your garage work smarter.
With a little creativity, your garage can work harder and smarter for you. From personalized storage solutions to the flexibility of tandem designs, Geranium’s homes make it easy to design a space that supports your lifestyle.
After all, a well-designed garage lets your lifestyle shift into high gear.
Learn more about how we build at Geranium.com

Imagine the possibilities with this 3-car garage at Clarehaven Estates
